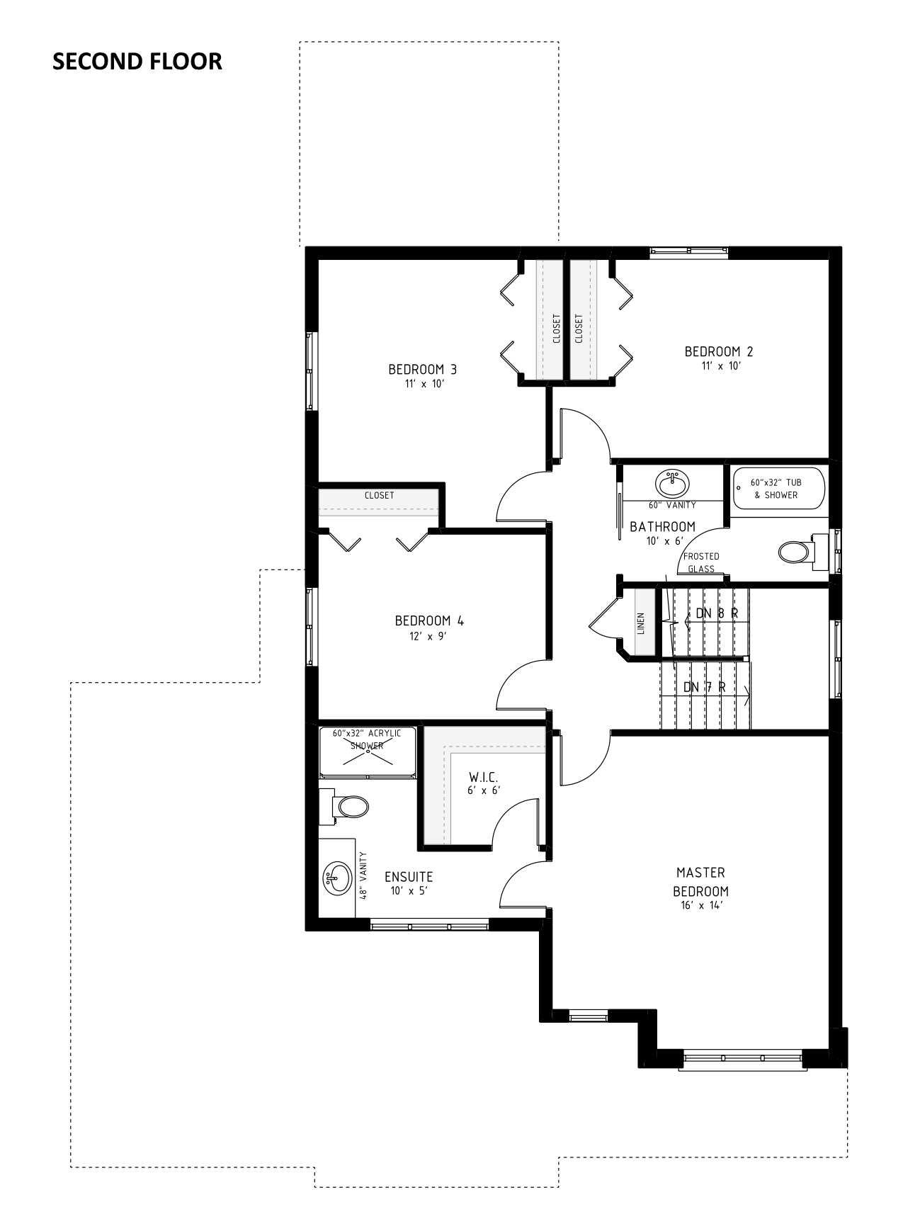
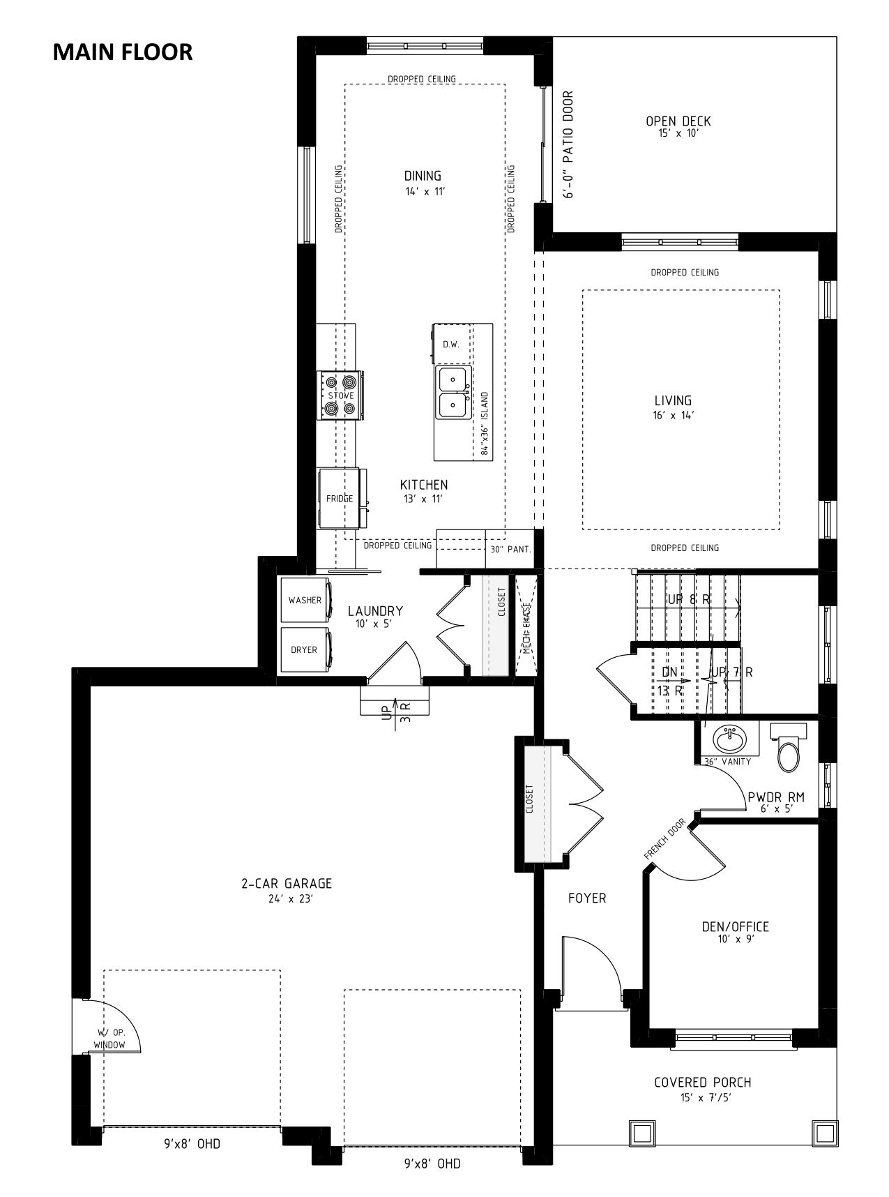
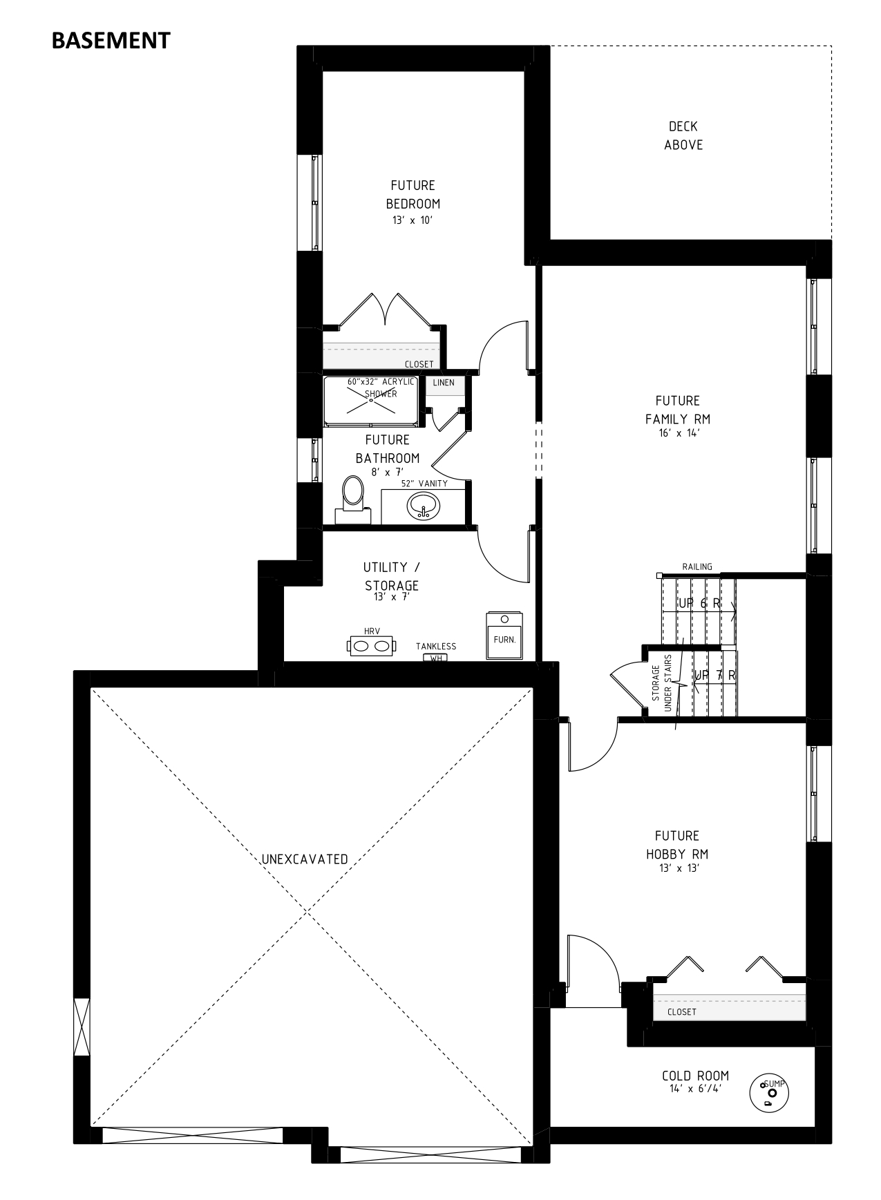
Thompson with 4 Bedrooms
previous project
Two Storey 2
next project
Decide which cookies you want to allow.
You can change these settings at any time. However, this can result in some functions no longer being available. For information on deleting the cookies, please consult your browser’s help function.
Learn more about the cookies we use.
Located at 1021 Waterloo Street in Port Elgin.
For more information, please contact Jessica Meigs at 519-372-3109, or [email protected].






